Планировка План этажа Типы отделки Планировка

ЖК «Чемпион (3 этап)», Дом №1

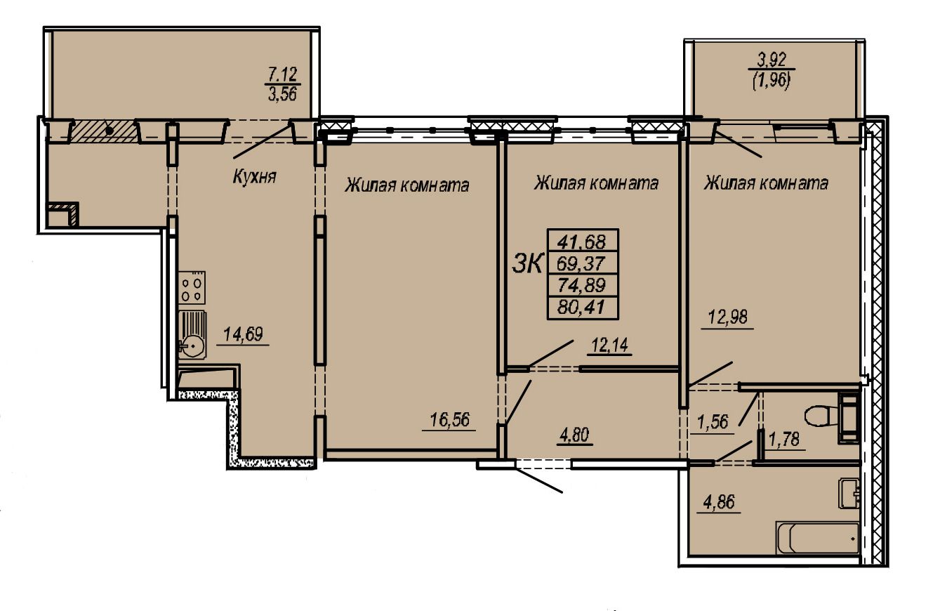
3-комнатная, 74.89м2

129 000 ₽/м2 9 этаж
*можно добавить отделку в ипотеку, подробности в отделе продаж
от 9 660 810 ₽

При выборе одной из ипотечных программ - семейная ипотека ДФО, ДВИ, IT ипотека, стоимость квартиры увеличивается согласовано условиям банка. Расчет производится по матрице банка.

Цена при оплате из собственных средств или с ипотекой от банков без субсидирования Цена с ипотекой от банков с субсидированием В банке с применением субсидирования

Характеристики

Площадь:
74.89м2
Этаж:
9 из 10
Секция (подъезд):
1
Тип помещения:
Квартира
Количество комнат:
3

Дополнительно можно добавить в ипотеку отделку “White box» или чистовую отделку

Информация о доме

Дата сдачи:
II квартал 2027
Количество этажей:
10
Статус стройки:
Строится